Mönkeberg strandnah und ruhig: Großes Baugrundstück (770 qm) mit Altbestand in bevorzugter Lage
Objektart
Adresse
Objektdaten
Informationen
Ausstattung
Details
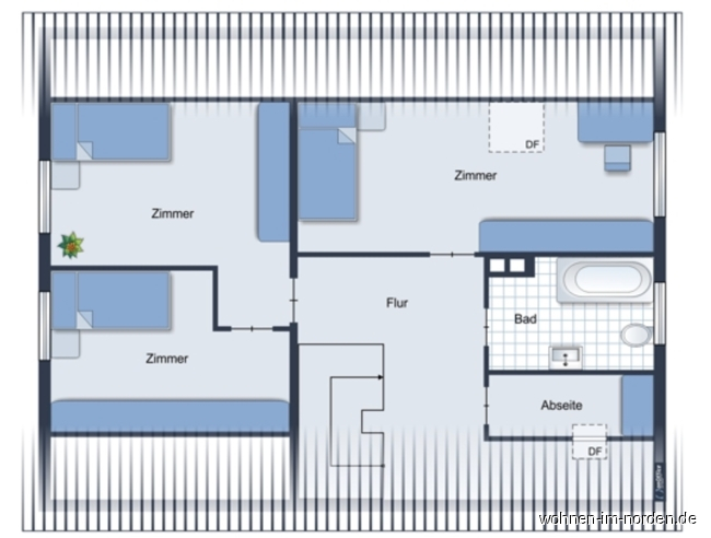
Das Grundstück umfasst eine Gesamtfläche von 770 Quadtratmetern und beeindruckt durch seinen gut geschnittenen, großen und sonnigen Garten. Es befindet sich im alten Teil von Mönkeberg in ruhiger Wohnlage, fußläufig entfernt vom Fähranleger, Strand und dem Yachthafen. Es handelt sich um ein Eckgrundstück angrenzend an eine Sackgasse, daher gibt es nur einen unmittelbaren Nachbarn. Der Altbestand des Grundstücks besteht aus einem stark sanierungsbedürftigem Einfamilienhaus. Dieses Einfamilienhaus wurde im Jahr 1938 erbaut und verfügt über eine Wohnfläche von 101 m². Es ist vollunterkellert. Das Haus ist seit einiger Zeit unbewohnt, das Grundstück ist entsprechend zugewachsen. Die Wohnfläche verteilt sich im Haus über zwei Etagen auf sechs Zimmer, ein Gäste WC, Küche, Bad und die Flure mit Treppenhaus. Es wird mit einer Ölheizung beheizt, diese ist von 1977.
.
- Grundstück 770 m² mit Altbestand (Einfamilienhaus)
.
Mönkeberg liegt an der Kieler Förde und grenzt unmittelbar an die Schleswig-holsteinische Landeshauptstadt Kiel. Nachbarorte sind Heikendorf, Schönkirchen und der Kieler Stadtteil Neumühlen-Dietrichsdorf. Diese Immobilie befindet sich in einer ruhigen Wohnstraße mit Einfamilienhausbebauung. Die Entfernung zum Mönkeberger Badestrand und Yachthafen beträgt etwa 400 Meter. Einkaufsmöglichkeiten sind in der Nähe vorhanden. Die Anbindung nach Kiel und in die Küstenorte ist sehr gut.
Es liegt ein Energiebedarfsausweis vor.
Dieser ist gültig bis 15.1.2034.
Endenergiebedarf beträgt 417.70 kwh/(m²*a).
Wesentlicher Energieträger der Heizung ist Öl.
Das Baujahr des Objekts lt. Energieausweis ist 1977.
Die Energieeffizienzklasse ist H.
www.wohnen-im-norden.de
Unser Provisions-/Courtageanspruch entsteht, sofern aufgrund unseres Nachweises, unserer Vermittlung und/ oder unserer Mitursächlichkeit ein Vertrag geschlossen wird. Für den Käufer und den Verkäufer fällt je eine Courtage in Höhe von 3,57 % inkl. der MwSt. an. Die Courtage ist mit Beurkundung durch den Notar verdient und durch den Käufer und Verkäufer zu zahlen. Erwerbsnebenkosten wie z. B. Grunderwerbssteuer, Notar- und Gerichtsgebühren sind vom Käufer zu tragen.
Alle Angebote sind freibleibend und unverbindlich. Alle Daten und Darstellungen beruhen auf Angaben des Eigentümers oder Dritter. Wohnen im Norden übernimmt hierfür keinerlei Haftung. Wir behalten uns ausdrücklich vor, Teile des Angebotes oder das gesamte Angebot ohne gesonderte Ankündigung zu ändern, zu ergänzen, zu löschen, oder die Veröffentlichung temporär oder endgültig einzustellen. Maße, Flächen und Grössenangaben sind ohne Gewähr und durch den Interessenten selber zu prüfen.
Ansprechpartner
Mobil: 00491778703660
ralf.frerix@wohnen-im-norden.de
Energieausweis (Bedarfsausweis)
417,70 kWh / (m²*a) Endenergiebedarf
417,70 kWh / (m²*a) Endenergiebedarf
417,70 kWh / (m²*a) Endenergiebedarf
Weitere Informationen
| Wesentlicher Energieträger | Öl |
| Energieausweis gültig bis | 2034-01-15 |
| Energieausweis Jahrgang | ab dem 1.5.2014 |
| Energieverbrauch für Warmwasser | enthalten |
| Energieausweis Werteklasse | H |
| Energieausweis Baujahr | 1977 |
| Energieausweis Gebäudeart | Wohngebäude |
| Heizung | Zentralheizung |
| Befeuerung | Öl |
Ich bin damit einverstanden, dass mir Karten von Google angezeigt werden. Es gelten die Datenschutzbedingungen von Google (https://policies.google.com/privacy).
Ich bin einverstanden